+28

Zijldijk 10 2362 AE Warmond € 1.575.000,- k.k.

  • Woonhuis
  • 13 kamers
  • 11 slaapkamers
  • 3 badkamers
  • Bouwjaar 1901
  • 1.500 m² perceeloppervlakte
  • 386 m² gebruiksoppervlakte
  • Gestoffeerd
  • E Energielabel E

Beschrijving

Wonen op een toplocatie bij de Kagerplassen!

Op unieke locatie grenzend aan rivier De Zijp met directe vaarverbinding naar de Kagerplassen staat deze te renoveren woonboerderij met bakhuis.

De woonboerderij verkeert in oude staat, wat u de kans biedt om het karakter en de ruimte van deze boerderij te transformeren naar de wensen van nu.

De werkelijk unieke ligging van de woonboerderij met eigen aanlegplaats en directe vaarverbinding naar de Kagerplassen geeft u een vrij en landelijk gevoel, terwijl de voorzieningen van bijvoorbeeld Warmond en de stad Leiden binnen handbereik zijn. Daarnaast ligt Leiderdorp, een gezellig dorp met het Winkelhof, diverse basisscholen, een middelbare school en een bruisend sport- en verenigingsleven, op slechts enkele minuten rijden.

Kortom, een unieke kans om een stukje geschiedenis nieuw leven in te blazen en uw eigen droomwoning te creëren op een prachtige locatie!

Situering:
Vanuit Leiden rijdt u over de prachtige Zijldijk (met aan uw linkerhand het prachtige water van De Zijl) en neemt u na ongeveer 3,5 km. de afrit/toegangsweg naar onder andere deze woonboerderij. Eenmaal op het erf valt de prachtige de omgeving meteen nog meer op. Als u het erf op loopt springt de karakteristieke woonboerderij meteen in het oog. Deze grenst aan de achterzijde aan het water De Zijp, met zoals gezegd een eigen aanlegplaats.
Hoewel de plaatsaanduiding Warmond betreft, ligt de boerderij eigenlijk aan de rand van Leiden. Over deze prachtige stad met zijn prachtige binnenstad met grachten, monumentale bouwwerken en hofjes, musea, winkels, medische- en openbaar vervoer voorzieningen (waaronder een NS station) etcetera etcetera hoeven wij u waarschijnlijk weinig te vertellen. U kunt er zo met de fiets naar toe! Maar ook Schiphol bijvoorbeeld is met de auto binnen 30 minuten bereikbaar en rijksweg A4 binnen een kwartier.
Maar ook het dorp Warmond mag er zijn, een charmant dorp gelegen aan de Kagerplassen met een gezellig centrum met diverse winkels, historische gebouwen, restaurants etcera. Het dorp heeft zonder meer een unieke, sfeervolle uitstraling.
De directe omgeving van de boerderij zal op korte termijn worden verfraaid. De ten noorden van de woonboerderij staande stenen schuur zal namelijk worden gesloopt. In plaats hiervan zal een twee-onder-één-kap-woning worden gerealiseerd. Zie voor meer informatie het ‘Beeldkwaliteitsplan’ op www.zijldijk10.nl en www.ruimtelijkeplannen.nl voor het bestemmingsplan en de overige bijbehorende documenten. Er vindt nog een beperkte bodemsanering plaats.

Algemeen:
Wat als u direct vanaf uw eigen aanlegsteiger uw boot kunt instappen voor een heerlijke vaartocht of dat u lekker de Sup kunt pakken voor een tocht over de Kagerplassen of het Vennemeer... hier kan het!
Via een toegangsweg vanaf de Zijldijk betreedt u het perceel met hierop deze authentieke woonboerderij welke gebouwd is omstreeks 1901 van steen met aan de voorzijde een pannen kap en een rieten kap aan de achterzijde. De boerderij is zowel aan de binnen als buitenzijde voorzien van sfeervolle authentieke elementen, waaronder een prachtig engelenraam in de aanbouw en een mooi sieroverstek aan de voorzijde van de boerderij.
De boerderij kan geheel naar eigen smaak en inzicht worden aangepast binnen de voorwaarden van het bestemmingsplan. De hele boerderij heeft een totale inhoud van ca. 2.471 m³ en een woonoppervlakte van ca. 386 m². Dit is nog zonder de ‘gebruiksoppervlakte overige inpandige ruimte’ (het aangebouwde ‘achterhuis’) van nog eens ca. 210 m².
Conform het bestemmingsplan mogen er eventueel twee wooneenheden in het hoofdgebouw gerealiseerd worden.

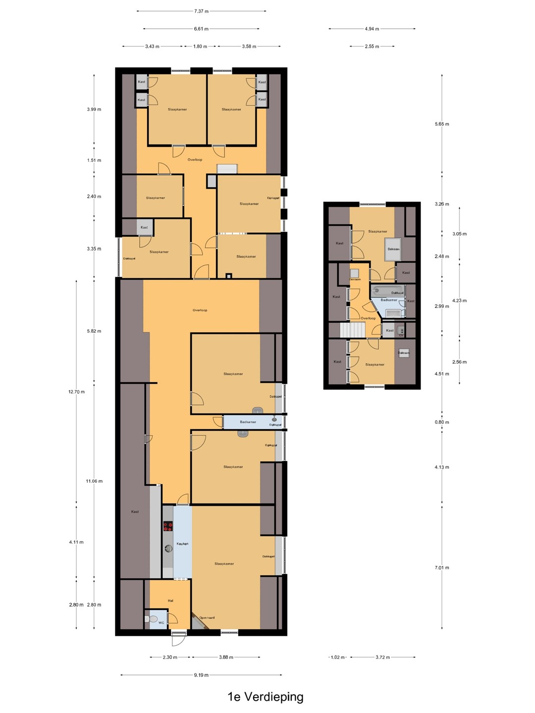
Indeling:
Begane grond: zijentree; woonkeuken v.v. eenvoudige inbouwkeuken met oven, gasstel, vaatwasser, magnetron en koelkast; woonkamer met balkenplafond en schouw met houtkachel; hal met trapopgang, vaste kast; toilet; badkamer met douche en wastafel met meubel; opkamer/slaapkamer; kelder; cv ruimte; bijkeuken met vaste kasten, opstelplaats cv-ketel en meterkast. Het achterhuis betreft de voormalige stal.

Verdieping: overloop met toegang tot 5 slaapkamers aan de voorzijde; aan de achterzijde een doucheruimte, 2 slaapkamers, woonkamer met keukenblok en hal met toilet en achterdeur met eigen trapopgang.

Indeling bakhuis:
Begane grond: entree/hal met trapopgang; slaapkamer; toilet met fonteintje; woonkamer met open keuken en loopdeur naar de tuin.
Verdieping: overloop met vaste kast; 2 slaapkamers; kast met cv installatie; badkamer met ligbad/douche en wastafel met meubel.

Parkeren doet u gemakkelijk op eigen terrein, waar meer dan voldoende ruimte is voor meerdere auto’s.

Oplevering en overige voorwaarden in overleg.

Voor meer informatie over bovengenoemd object kunt u contact opnemen met Peter van Rossem, NVM-makelaar.

Vrijblijvende aanbieding: Deze informatie, eventuele gesprekken, onderhandelingen etc. zijn allen vrijblijvend. Er is pas sprake van een overeenkomst op het moment dat de door ons kantoor opgestelde koopovereenkomst door beide partijen is (beoordeeld en) ondertekend. Zolang de koopakte niet door beide partijen is ondertekend, is er geen sprake van gebondenheid in welke zin dan ook en hebben partijen het recht zonder kostenvergoeding etc. af te zien van een transactie.

Kaart

Kenmerken

Overdracht

Referentienummer
1276
Vraagprijs
€ 1.575.000,- k.k.
Inrichting
Ja
Inrichting
Gestoffeerd
Aanvaarding
In overleg
Aangeboden sinds
Maandag 3 maart 2025
Laatste wijziging
Maandag 6 oktober 2025

Bouw

Type object
Woonhuis, woonboerderij, vrijstaande woning
Soort bouw
Bestaande bouw
Bouwperiode
1901
Dakbedekking
Dakpannen
Type dak
Zadeldak

Oppervlaktes en inhoud

Perceeloppervlakte
1.500 m²
Woonoppervlakte
386 m²
Inhoud
2.471 m³
Oppervlakte overige inpandige ruimten
224 m²

Indeling

Aantal bouwlagen
2
Aantal kamers
13 (waarvan 11 slaapkamers)
Aantal badkamers
3 (en 2 aparte toiletten)

Locatie

Ligging
Aan vaarwater

Tuin

Type
Tuin rondom
Hoofdtuin
Ja

Energieverbruik

Energielabel
E

Uitrusting

Warm water
CV-ketel
Verwarmingssysteem
Centrale verwarming
Open haard
Badkamervoorzieningen Badkamer 1
Douche
Wastafelmeubel
Badkamervoorzieningen Badkamer 2
Douche
Badkamervoorzieningen Badkamer 3
Ligbad
Wastafel
Heeft een open haard
Ja
Tuin aanwezig
Ja

Kadastrale gegevens

Kadastrale aanduiding
Warmond B 576
Perceeloppervlakte
1.500 m²
Omvang
Deel perceel
Eigendomsituatie
Eigen grond

Brochure(s) en overige bijlagen

Brochure Zijldijk 10 te Warmond.pdf Download