Verkocht onder voorbehoud:Noordzijdseweg 229, 3415 RE Polsbroek - Foto
Verkocht onder voorbehoud
+65

Noordzijdseweg 229 3415 RE Polsbroek € 1.350.000,- k.k.

  • Woonhuis
  • 6 kamers
  • 5 slaapkamers
  • 2 badkamers
  • Bouwjaar 1875
  • 4.250 m² perceeloppervlakte
  • 164 m² gebruiksoppervlakte
  • Gestoffeerd
  • E Energielabel E

Beschrijving

Karakteristieke boerderij met stallen/schuren midden in het Groene Hart!

Werkelijk keurig onderhouden boerderij met diverse stallen/schuren, midden in het Groene Hart, met volop vrijheid, charme en ruime schuren/stallen. Deze karakteristieke voormalige boerderij “Damzigt” aan de Noordzijdseweg in Polsbroek is een buitenkans voor wie op zoek is naar ruimte, rust én comfort. Met een royaal woonoppervlak van ca. 164 m², vijf volwaardige slaapkamers, twee badkamers en een ruime woonkeuken, biedt deze woning meer dan voldoende plek voor het hele gezin.

Het geheel is gelegen aan een rustige weg in een landelijke omgeving, met een prachtig vrij uitzicht over de uitgestrekte weilanden. Een sfeervolle plek waar wonen en buitenleven hand in hand gaan.

Op het ruime perceel bevinden zich, naast de woning, onder andere een aangebouwde garage, een voormalige veestal met aangebouwde schuur, een voormalige varkensstal, twee silo’s en een oude mestsilo. Het perceel heeft een totale oppervlakte van 4.250 m² en het geheel beschikt over een agrarische bestemming.

Kortom: vrij wonen in een prachtige landelijke omgeving, eventueel te combineren met een bedrijf aan huis indien de gemeente hieraan medewerking verleent.

Situering:
Kenners weten het: de Noordzijdseweg, waaraan deze boerderij is gelegen, is ‘de rustige kant’. De Noordzijdseweg en Zuidzijseweg lopen hier parallel aan elkaar, met daartussen een prachtige wetering. De Zuidzijdseweg is de doorgaande weg, de Noordzijdseweg waaraan deze boerderij ligt is de rustige weg, met alleen bestemmingsverkeer en fietsers. Het geheel is verder fraai en landelijk gesitueerd in het buurtschap Polsbroekerdam. Dit buurtschap kenmerkt zich door veelal vrijstaande lintbebouwing, omringd door weilanden en natuur. De boerderij ligt midden in het Groene Hart, centraal tussen de steden Rotterdam, Utrecht en Gouda, met goede uitvalswegen naar onder andere de A2 en A12.

In het nabijgelegen Polsbroek zijn diverse voorzieningen aanwezig, waaronder een basisschool, een buurtsuper en een klein medisch centrum. Verder kent Polsbroek een actief verenigingsleven en is er een busverbinding Gouda – IJsselstein.

Voor meer uitgebreide voorzieningen liggen het historische stadje Oudewater (op circa 5 km afstand) en de sfeervolle zilverstad Schoonhoven (ca. 9 km) binnen handbereik. Beide plaatsen bieden een gevarieerd winkelaanbod, onderwijsvoorzieningen en een actief verenigingsleven. De omgeving van Polsbroekerdam biedt daarnaast volop recreatiemogelijkheden, zoals schitterende fiets- en wandelroutes door het uitgestrekte Groene Hart.

Algemeen:
Het betreft hier een solide, van steen gebouwde boerderij met pannendak. Het bouwjaar is 1875. De eigenaren hebben het geheel keurig onderhouden. Eind jaren ’70 is de boerderij door hen eigenhandig grootscheeps verbouwd en daarna op onderdelen gemoderniseerd. Daarna hebben ook nog divere verbouwingen plaatsgevonden. De kozijnen zijn van hout en grotendeels voorzien van enkele beglazing. De woning is voorzien van gevelisolatie, dakisolatie en gedeeltelijke vloerisolatie. De woning wordt geheel verwarmd door centrale verwarming (gasketel uit november 2024).
Dankzij de aanwezigheid van een slaapkamer en badkamer op de begane grond, is de woning ook geschikt voor levensloopbestendig wonen.

Door de authentieke en sfeervolle accenten -zoals het balkenplafond, de stalraampjes, het engelenraam, de houten luiken aan de buitenzijde, de rollagen boven de ramen en bijvoorbeeld het antiek geslepen glas in de kamer- en keukendeur-, heeft de boerderij een fraaie uitstraling. De woonboerderij heeft dan ook een karakteristieke aanduiding.
Dankzij de vele raampartijen geniet u niet alleen van een prachtig vrij uitzicht over de polder, maar ook van een overvloed aan natuurlijk licht, het is echt een lichte woning van binnen, zeker aan de voorzijde.

De inhoud van de woning is ca. 1.763 m³ en de woonoppervlakte ca. 164 m². Aan ruimte dus geen gebrek. Indien de gemeente hieraan meewerkt is dubbele bewoning van het hoofdgebouw eventueel mogelijk.

De bestemming van het geheel is agrarisch.
Als koper dient u er rekening mee te houden dat de banken op dergelijk vastgoed minder hoge percentages financieren als bij reguliere woningen. Soms maken kopers in voorkomende gevallen (mede) gebruik van alternatieve vormen van financiering.

Indeling:
Begane grond: Voorhuis: Bij binnenkomst wordt u verwelkomd in de hal, welke u direct leidt naar de gezellige woonkamer aan de voorzijde van de woonboerderij. De vele raampartijen maken de woonkamer erg licht en bieden een prachtig vrij uitzicht over de polder. Vanuit de woonkamer loopt u door naar de prachtige (open) woonkeuken, uitgevoerd in een landelijke stijl. De woonkeuken is ingericht met een keuken in hoekopstelling, voorzien van een 5 pits gasfornuis met bakplaat, afzuiging in de schouw, 2 ovens, vaatwasser en koelkast. Het prachtige aanrechtblad is gestort graniet. Via de royale hal annex bijkeuken met vaste kasten en witgoedaansluiting kunt u het toilet en de master bedroom bereiken. Deze slaapkamer op de begane grond is voorzien van vaste kasten en heeft een badkamer en-suite, welke is voorzien van een inloopdouche, designradiator en wastafelmeubel.
Zowel vanuit de hal als via de bijkeuken is de inpandige garage bereikbaar. Deze is voorzien van een praktische roldeur en biedt ruimte voor 1 auto.
Achterhuis: De grote ruimte in het achterhuis, voorzien van een roldeur, leent zich uitstekend als werkplaats, schuur of garage.

Verdieping: Voorhuis: Op de verdieping bevinden zich een ruime overloop met vaste bergkast, 4 slaapkamers waarvan 3 met vaste kasten en een badkamer. De badkamer is volledig betegeld en biedt een ligbad, douche, toilet en wastafel.
Achterhuis: De zolderverdieping van het achterhuis biedt een multifunctionele ruimte, geschikt voor diverse doeleinden.

Bergzolder: Opgedeeld in twee compartimenten (gescheiden door een brandmuur). Bereikbaar middels een losse trap.

Tuin: Via een inrit aan de zijkant van de woning betreedt u het perceel. Rondom de woning ligt een verzorgde tuin met sierbestrating, een grindpad en nette hagen aan de voorzijde. Verspreid over het perceel vindt u meerdere terrassen, waaronder een tuinhuis annex overkapping – zo is er altijd wel een heerlijk plekje om buiten te zitten. Aan de achterzijde is er volop ruimte om meerdere auto’s op eigen terrein te parkeren, waarvan er minimaal tien overdekt kunnen staan. Zowel aan de voor- als aan de achterzijde van het perceel geniet u van een prachtig vrij uitzicht over de polder.
Op het perceel bevinden zich daarnaast twee voormalig veestallen (waarvan één met verdieping), twee silo’s, een oude mestsilo en een perceeltje grasland. De aanwezigheid van deze bedrijfsgebouwen, allen voorzien van krachtstroom, biedt u tal van mogelijkheden. Zo kunt u hier fantastisch wonen en dat eventueel combineren met een aan huis gebonden beroep.

Aangebouwde Garage: Zeer royale garage van ca. 100 m² welke is aangebouwd aan de woonboerderij. De garage is opgetrokken uit steen, voorzien van een betonvloer en een pannendak. Voorzien van elektra, water en drie elektrische roldeuren. De garage biedt plaats aan maar liefst zes auto’s, maar leent zich ook uitstekend als werkplaats of opslagruimte. De garage is goed geïsoleerd door middel van een spouwmuur, gevelisolatie en dakisolatie.

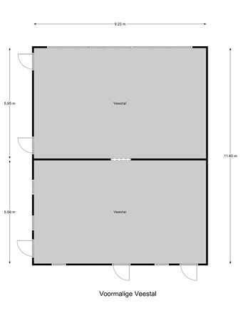
Schuur 1: Voormalige veestal van ca. 107 m², gebouwd van hout op een stenen voet en voorzien van een dak met dakpanplaten. Deze schuur beschikt over een betonnen vloer, is voorzien van water en elektra, en heeft een praktische verdieping.
Aan de achterzijde bevindt zich een aangebouwde houten schuur van ca. 49 m², voorzien van een overkapping en een golfplaten dak.

Schuur 2: Voormalige varkensstal van ca. 262 m², gebouwd in 1992 van steen met een golfplaten dak. De schuur is gebouwd op een betonnen plaat en is voorzien van water en elektra. De schuur is verdeeld in 4 compartimenten. De gehele stal is voorzien van vloerverwarming. Daarnaast is er een oude cv-ketel aanwezig. De schuur is onderkelderd met een mestkelder.

Tuinhuis / overkapping: Tuinhuis in de vorm van een overkapping van ca. 21 m², gebouwd van hout op een houten vlonder met een pannendak. De houten vlonder is onderheid. De binnenruimte is voorzien van elektra.

Oplevering en overige voorwaarden in overleg.

Voor meer informatie over dit bijzondere object kunt u contact opnemen met de verkoopmakelaar: Peter van Rossem, NVM-makelaar.

Vrijblijvende aanbieding: Deze informatie, eventuele gesprekken, onderhandelingen etc. zijn allen vrijblijvend. Er is pas sprake van een overeenkomst op het moment dat de door ons kantoor opgestelde koopovereenkomst door beide partijen is (beoordeeld en) ondertekend. Zolang de koopakte niet door beide partijen is ondertekend, is er geen sprake van gebondenheid in welke zin dan ook en hebben partijen het recht zonder kostenvergoeding etc. af te zien van een transactie.

Kaart

Kenmerken

Overdracht

Referentienummer
1272
Vraagprijs
€ 1.350.000,- k.k.
Inrichting
Ja
Inrichting
Gestoffeerd
Status
Verkocht onder voorbehoud
Aanvaarding
In overleg
Aangeboden sinds
Maandag 25 augustus 2025
Laatste wijziging
Vrijdag 17 oktober 2025

Bouw

Type object
Woonhuis, woonboerderij, vrijstaande woning
Soort bouw
Bestaande bouw
Bouwperiode
1875
Dakbedekking
Dakpannen
Type dak
Zadeldak
Keurmerken
Energie prestatie advies
Isolatievormen
Dakisolatie
Gedeeltelijk dubbel glas
Muurisolatie
Vloerisolatie

Oppervlaktes en inhoud

Perceeloppervlakte
4.250 m²
Woonoppervlakte
164 m²
Inhoud
1.763 m³
Oppervlakte overige inpandige ruimten
282 m²
Oppervlakte externe bergruimte
482 m²

Indeling

Aantal bouwlagen
3
Aantal kamers
6 (waarvan 5 slaapkamers)
Aantal badkamers
2 (en 1 apart toilet)

Locatie

Ligging
Aan rustige weg
Vrij uitzicht

Tuin

Type
Tuin rondom
Staat
Goed onderhouden

Energieverbruik

Energielabel
E

CV ketel

CV ketel
Nefit
Warmtebron
Gas
Bouwjaar
2024
Combiketel
Ja
Eigendom
Eigendom

Uitrusting

Aantal parkeerplaatsen
15
Aantal overdekte parkeerplaatsen
10
Warm water
CV-ketel
Verwarmingssysteem
Centrale verwarming
Ventilatie methode
Natuurlijke ventilatie
Badkamervoorzieningen Badkamer 1
Inloopdouche
Wastafelmeubel
Badkamervoorzieningen Badkamer 2
Douche
Ligbad
Toilet
Wastafel
Parkeergelegenheid
Aangebouwde stenen garage
Inpandige garage
Heeft een rookkanaal
Ja
Glasvezelaansluiting aanwezig
Ja
Tuin aanwezig
Ja
Heeft een garage
Ja
Telefoonaansluiting aanwezig
Ja
Beschikt over een internetverbinding
Ja
Heeft schuur/berging
Ja

Kadastrale gegevens

Kadastrale aanduiding
Lopik D 1121
Perceeloppervlakte
4.250 m²
Eigendomsituatie
Eigen grond

Brochure(s) en overige bijlagen

Brochure.pdf Download