+70

Korte Waarder 30 2415 AV Nieuwerbrug aan den Rijn € 899.000,- k.k.

  • Woonhuis
  • 5 kamers
  • 4 slaapkamers
  • 2 badkamers
  • Bouwjaar 1955
  • 630 m² perceeloppervlakte
  • 190 m² gebruiksoppervlakte
  • Gestoffeerd
  • B Energielabel B

Beschrijving

Stijlvolle vrijstaande woning met garage gelegen in het dorp…

Deze riante vrijstaande woning met fraaie tuin, royale oprit en ruime garage is gelegen op een prominente locatie in het dorp Nieuwerbrug aan den Rijn. Met een woonoppervlakte van ca. 190 m², vier royale slaapkamer en twee badkamers, biedt deze goed onderhouden en erg stijlvolle woning een comfortabele leefruimte voor het hele gezin. De woning is voorzien van energielabel B, is werkelijk keurig onderhouden en er liggen 18 zonnepanelen op het dak van de garage.

U woont hier op een hele fijne plek in het dorp Nieuwerbrug aan den Rijn met alle dagelijkse voorzieningen binnen handbereik. Hier combineert u het dorpse leven met de gunstige ligging nabij grote steden als Gouda, Rotterdam, Den Haag en Utrecht. Kortom, riant wonen op een fijne plek!

Situering
Deze woning is gesitueerd in Nieuwerbrug aan den Rijn, midden in het 'Groene Hart' dus tussen Utrecht en Gouda, uitstekend gesitueerd ten opzichte van een diversiteit van voorzieningen. Nieuwerbrug aan den Rijn is een karakteristiek dorp binnen de gemeente Bodegraven – Reeuwijk en is gelegen aan de wateren de Oude Rijn en de Dubbele Wiericke. De oude ophaalbrug in het dorp stamt uit 1788 en is de enige tolbrug in privébezit in Nederland. Op ca. 2 km afstand bevindt zich een nieuw Plus supermarkt, een volledig zelfvoorzienende supermarkt.

De ligging is centraal tussen de grotere plaatsen Bodegraven en Woerden waar gebruik gemaakt kan worden van meer winkelaanbod, middelbare scholen, treinstations en sportvoorzieningen. Ook zijn de uitvalswegen N11 en A12 richting de grote steden op korte afstand gelegen.

Algemeen
Het betreft hier een solide van steen met spouwmuur gebouwde woning met pannendak. Het bouwjaar is 1955. De houten kozijnen zijn grotendeels voorzien van dubbele beglazing. De woning is geïsoleerd middels muur-, dak- en spouwmuurisolatie. In 2002 is aan de noordzijde een aanbouw gerealiseerd, waarmee de woonkamer is vergroot en de master bedroom op de eerste verdieping is gecreëerd. De hele woning ademt karakter door de comfortabele leefruimtes, de vele lichtinval (het is echt een fijne lichte woning) en door het glas-in-lood, de markiezen en de sfeervolle gashaard, om maar enkele details te noemen. Op het dak van de garage liggen overigens 18 zonnepanelen.

De woning heeft een woonoppervlakte van ca. 190 m² en een inhoud van ca. 726 m³ en telt 4 royale slaapkamers. De woning beschikt over energielabel B.

Het huis staat op een grondkavel van 630 m². De tuin rondom de woning is fraai aangelegd, goed onderhouden en afgezet met een fraai ijzeren hekwerk op een betonfundering. Op de oprit is plaats voor meerdere auto’s. Daarnaast beschikt u over een ruime garage met aanbouw, die uitstekend geschikt is als werkplaats of voor extra opslagruimte.

Indeling
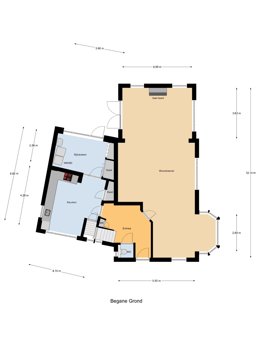
Begane grond: Bij binnenkomst wordt u verwelkomd in de ruime hal waar zich de meterkast, het toilet en de trap naar de eerste verdieping bevinden. Vanuit hier loopt u door naar de royale woonkamer met sfeervolle gashaard en schouw. Dankzij de vele raampartijen geniet u hier zoals gezegd van veel lichtinval, wat een aangename sfeer creëert in de woning. Via de hal bereikt u tevens de landelijke woonkeuken met eethoek. De keuken is ingericht in een hoekopstelling en uitgerust met een 5 pits inductieplaat, oven, combimagnetron, koelkast, vaatwasser en elektrische close-in boiler.
Vanuit de keuken heeft u toegang tot de opslagkelder (ca. 9,5 m²), waar zich ook de waterontharder bevindt, en tot de ruime bijkeuken met witgoedaansluiting, spoelbak en praktische inbouwkasten.

Verdieping: Op de eerste verdieping bevindt zich een ruime overloop die toegang biedt tot vier royale slaapkamers, een separate toiletruimte en twee badkamers. Alle slaapkamers zijn uitgerust met airconditioning, waarvan twee tevens beschikken over inbouwkasten. De zuidoostelijke slaapkamer biedt bovendien toegang tot het balkon.
De nette badkamer (2018) is volledig betegeld en voorzien van een dubbel wastafelmeubel, douchecabine, handdoekenradiator en elektrische vloerverwarming. Daarnaast is er een tweede badkamer aanwezig, en-suite verbonden aan de master bedroom. Deze is uitgerust met een dubbel wastafelmeubel, douchecabine en design radiator.

Zolder: De ruime bergzolder is bereikbaar via een vlizotrap en biedt volop praktische opslagruimte. Hier bevinden zich tevens de CV-opstelling en de hybride boiler die door zonnepanelen wordt verwarmd.

Tuin: Rondom de woning bevindt zich een fraai aangelegde, keurig onderhouden tuin. De tuin is grotendeels bestraat en voorzien van diverse vaste beplanting, een gazon (met beregeningssysteem) en een sierhaag, die veel privacy biedt. Op het terras, onder het zonnescherm (ter overname) geniet u op warme dagen van een beschutte en comfortabele buitenruimte. De royale garage biedt volop ruimte voor opslag of als werk-/hobbyruimte. Daarnaast is er voldoende parkeergelegenheid op eigen terrein, met op de oprit twee laadpunten voor elektrische voertuigen (ter overname beschikbaar).

Garage: Royale vrijstaande garage van ca. 48,4 m², oorspronkelijk gebouwd in 1955. De garage is opgetrokken uit steen, voorzien van een betonnen vloer en een zadeldak met pannen. Deze is uitgerust met een elektrische roldeur, elektra, dubbel glas en muurisolatie. Tevens beschikt de garage over een praktische bergzolder.
In 2021 is er een aanbouw aan de garage gerealiseerd, eveneens met een betonnen vloer, een plat dak met bitumineuze dakbedekking en potdekselwerk aan de buitenzijde.

Oplevering en overige voorwaarden in overleg.

Voor meer informatie over bovengenoemd object kunt u contact opnemen met: Peter van Rossem

Vrijblijvende aanbieding:
Deze informatie, eventuele gesprekken, onderhandelingen etc. zijn allen vrijblijvend. Er is pas sprake van een overeenkomst op het moment dat de door ons kantoor opgestelde koopovereenkomst door beide partijen is (beoordeeld en) ondertekend. Zolang de koopakte niet door beide partijen is ondertekend, is er geen sprake van gebondenheid in welke zin dan ook en hebben partijen het recht zonder kostenvergoeding etc. af te zien van een transactie.

Kaart

Kenmerken

Overdracht

Referentienummer
1344
Vraagprijs
€ 899.000,- k.k.
Inrichting
Ja
Inrichting
Gestoffeerd
Aanvaarding
In overleg
Aangeboden sinds
Vrijdag 26 september 2025
Laatste wijziging
Maandag 6 oktober 2025

Bouw

Type object
Woonhuis, villa, vrijstaande woning
Soort bouw
Bestaande bouw
Bouwperiode
1955
Dakbedekking
Dakpannen
Type dak
Zadeldak
Keurmerken
Energie prestatie advies
Isolatievormen
Dakisolatie
Grotendeels dubbel glas
Muurisolatie
Spouwmuren

Oppervlaktes en inhoud

Perceeloppervlakte
630 m²
Woonoppervlakte
190 m²
Inhoud
726 m³
Oppervlakte overige inpandige ruimten
12 m²
Oppervlakte externe bergruimte
48 m²
Oppervlakte gebouwgebonden buitenruimte
3 m²

Indeling

Aantal bouwlagen
3 (en 1 kelder)
Aantal kamers
5 (waarvan 4 slaapkamers)
Aantal badkamers
2 (en 2 aparte toiletten)

Locatie

Ligging
In woonwijk
Nabij school
Nabij snelweg

Tuin

Type
Tuin rondom
Hoofdtuin
Ja
Oriëntering
Noorden
Staat
Prachtig aangelegd

Energieverbruik

Energielabel
B

CV ketel

CV ketel
Intergas HRE36/30
Warmtebron
Gas
Bouwjaar
2017
Combiketel
Ja
Eigendom
Eigendom

Uitrusting

Aantal parkeerplaatsen
4
Aantal overdekte parkeerplaatsen
1
Warm water
CV-ketel
Elektrische boiler
Verwarmingssysteem
Airconditioning
Centrale verwarming
Gashaard
Vloerverwarming (gedeeltelijk)
Ventilatie methode
Mechanische ventilatie
Natuurlijke ventilatie
Keukenvoorzieningen
Inbouwapparatuur
Badkamervoorzieningen Badkamer 1
Douche
Vloerverwarming
Wastafelmeubel
Badkamervoorzieningen Badkamer 2
Douche
Wastafelmeubel
Parkeergelegenheid
Vrijstaande stenen garage
Heeft airco
Ja
Heeft een alarm
Ja
Heeft een balkon
Ja
Heeft een rookkanaal
Ja
Glasvezelaansluiting aanwezig
Ja
Tuin aanwezig
Ja
Heeft een garage
Ja
Heeft een dakraam
Ja
Heeft zonwering
Ja
Heeft zonnepanelen
Ja
Heeft ventilatie
Ja

Kadastrale gegevens

Kadastrale aanduiding
Bodegraven D 2300
Perceeloppervlakte
630 m²
Omvang
Geheel perceel
Eigendomsituatie
Eigen grond

Brochure(s) en overige bijlagen

Brochure.pdf Download