+90

Lekdijk 436 2957 VC Nieuw-Lekkerland

  • Woonhuis
  • 6 kamers
  • 4 slaapkamers
  • 2 badkamers
  • Bouwjaar 1903
  • 163.375 m² perceeloppervlakte
  • 230 m² gebruiksoppervlakte
  • E Energielabel E

Beschrijving

EEN ONTWIKKELPROJECT.

Nu geëxploiteerd als melkveehouderijbedrijf. Bij verkoop een intensiever exploitatie met een hoger rendement vereist....

Geheel gerestylde woonboerderij voor dubbele bewoning, huisstal, berging, diverse stallen en schuren (totaal 1.165 m2) en diverse percelen grasland.

Het object is gelegen naast het Wereld-Erfgoed "Kinderdijk"
Een omgeving wat jaarlijks zo'n 1 miljoen mensen aantrekt.

Het object is gelegen tussen de bebouwde kom van Nieuw-Lekkerland, strak langs de ijsbaan, de tennisbaan en de waterwingebieden van Oasen. De woonboerderij ligt ook nabij het Hollandse molenproject “WERELD-ERFGOED” Kinderdijk met zijn ruime recreatieve – toeristische aantrekkingskracht.

Woonboerderij:
Bouwjaar: 1903
Zijnde een dwarshuis met langhuis
Afmeting dwarshuis: 12 x 6.50 meter = 78 m2
Afmeting langhuis woonhuis: 12 x 9 meter = 108 m2
Woonoppervlakte: ca. 230 m2
Inhoud: ca. 940 m3

Gebouwd van steensmuur, pannendak, hardhouten kozijnen met mooi goed geïsoleerd dubbelglas, gedeeltelijk zonwerend op een 3-tal ruiten na.

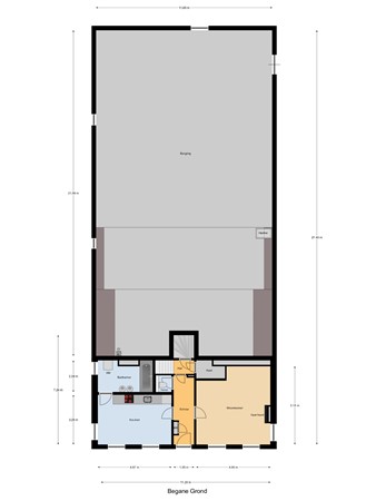
Indeling dwarshuis:
Begane grond: Entree, woonkamer, open keuken, modern ingerichte badkamer met ligbad, douche en wastafel en een modern ingericht toilet.

Indeling langhuis:
Begane grond: Entree, woonkeuken, woonkamer, kinderkamer, hoofdslaapkamer, modern ingerichte badkamer, modern ingericht toilet, kelder (afmeting 12 x 6,5 meter, 1.70 hoog), authentiek.

Verdieping: overloop, 3 slaapkamers

Buitenterras: afmeting 4 x 3,5 meter = 14 m2.
Speelweide met ondertunneling.

Huisstal:
Bouwjaar: 1903
Afmeting: 14 x 12 meter = 168 m2
Gebouwd van steensmuur (eerste 2,5 meter) vervolgens opgehoogd met damwandprofiel tot de muurplaat 4,5 meter en pannendak.
Nokhoogte: ca. 9,5 meter.

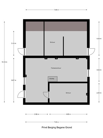
Bergingschuur/Afdak:
Afmeting: 8 x 6 meter = 48 m2 + 46m2 = 94 m2
Gebouwd van steen, pannendak, betonvloer.
In gebruik als werkplaats, berging

Ondergrond woning en tuin
Ca 1.100 m2

Gebouwen over de wetering:

Wagenloods
Bouwjaar: 2022
Afmeting: 23.40 x 13.20 meter = 308 m2
Muurplaathoogte: 4.50 meter
Nokhoogte: 7 meter
Gegalvaniseerde spanten, 5 vakken
Gebouwd van damwandprofielplaten wanden en golfplaten dak

Stal
Bouwjaar: 2017
Afmeting: 38.70 x 18.50 meter en 13.50 x 3.5 meter = 763 m2
Muurplaathoogte: 2.60 meter
Nokhoogte: 8 meter
Kelderdiepte: 2.30 meter
Totale putinhoud: ca 1.000 m3
Betonnen onderbouw, damwandprofielplaten wanden en dupanel geïsoleerd dak

Vaste mestopslag
Bouwjaar: 2022 - onderheid
Afmeting: 10 x 6 meter = 60 m2

Sleufsilo:
Afmeting: 28 x 6 meter = 168 m2
Betonwand 1 meter hoog.
Stelconplaten vloer

Erfverharding:
Ca. 1.760 m2.

Ondergrond bedrijfsgebouwen en erf ca. 8.000 m2
Waarvan ca. 582 m2 is gelegen voor de wetering.

Het erf over de wetering heeft een aparte ontsluiting op de openbare weg.

Grasland:
De huiskavel - 4 percelen breed – lopend tot de Tiendweg
Oppervlakte: ca. 09.35.73 ha.

3 tot 5 percelen gelegen over de Tiendweg/Oude Wetering lopend tot de Elzenweg
Oppervlakte 03.99.60 ha.

1 perceel grond gelegen over Elzenweg lopend tot de Groote - Waterschap
Oppervlakte: 01.90.60 ha.
Dit perceel ligt naast de dijk.

Fosfaatrechten:
Worden niet verkocht.

Nutsvoorzieningen:
Water, elektra 220/380, aardgas, gemeentelijke riolering voor en over de wetering, telefoon.

Bestemmingsplan:
De boerderij is gelegen in het bestemmingsplan werelderfgoed Kinderdijk - Elshout, onherroepelijk vastgesteld door de gemeente Molenwaard d.d. 4 juli 2017.

De bestemming ter plaatste is:
Enkelbestemming agrarisch.
Dubbelbestemming waarde archeologie-2
Dubbelbestemming Waterstaat – Waterkering
Er is een bouwvlak ingetekend en ter plaatste van de boerderij, het hoofdgebouw is bouwaanduiding karakteristiek

Het bouwblok over de wetering is ca. 14.000 m2.
280 meter lang en 50 meter breed.
De grond buiten het bouwblok is agrarisch zonder bebouwing.

Percelen over de Tiendweg en over de Schoonhovenseweg:
De rechter percelen zijn gelegen in het bestemmingsplan Buitengebied Nieuw-Lekkerland, vastgesteld 26 maart 2023.

Perceel langs de bebouwde kom heeft de bestemming agrarisch waarde archeologie 8:
Milieuzone – grondwaterbeschermingsgebied

Het perceel gelegen tegen de boezem heeft hier de bestemming waterstaat voorlopig 2, waarde archeologie 8 en Milieuzone – grondwaterbeschermingsgebied.
Deze bestemming zit ook op het perceel gelegen over de Achterwetering/ Schoonhovenseweg.

De uitstulping richting de bebouwde kom heeft de bestemming sport en maakt onderdeel uit van het bestemmingsplan bebouwde kom Nieuw-Lekkerland en Kinderdijk onherroepelijk vastgesteld door de gemeente Nieuw-Lekkerland d.d. 28 juni 2012.

Milieu:
Er is een milieuvergunning verleend op basis van de Wet milieubeheer en de Algemene Wet Bestuursrecht m.b.t de inrichting gelegen aan de Lekdijk 436 te Nieuw-Lekkerland d.d. 22 november 2002.

Er is een NB-vergunning verleend door de omgevingsdienst Haaglanden namens de Provincie Zuid-Holland d.d. 21 februari 2014 voor het houden van 69 melkkoeien en 30 stuks vrouwelijk jongvee. Wat overeenkomt met een stikstofuitstoot van 1029 kg NH3

Samenvatting:
Gebouwen perceel voor de wetering:
• Woonhuis inhoud 940 m3 met 2 badkamers
• 168 m2 huisstal met strozolder 276 m2
• Aparte schuur 94 m2.
• Grond oppervlakte 1.682 m2
Stallen en schuren ca. 1.165 m2 exclusief de huisstal

Voor de ruimte voor ruimte regeling geldt het volgende:
De provincie Zuid-Holland heeft in de Provinciale Omgevingsverordening een regeling zitten, waarbij een nieuwe ruimtelijke ontwikkeling mogelijk is, als de ruimtelijke kwaliteit per saldo gelijk blijft (artikel 7.43c). Een nieuwe ruimtelijke ontwikkeling is dan bv een compensatiewoning. Als voorbeeld wordt daarbij de oude regeling gehanteerd, namelijk dat een compensatiewoning mogelijk is bij de sanering van 1.000 m2 voormalige agrarische bebouwing, 5.000 m2 kas of 2,25 ha sierteelt grond. Gemeenten hebben deze regeling vaak opgenomen in verschillende bestemmingsplannen.

Meerwaardeclausule:
Als de koper het vastgoed binnen 15 jaar voor woningbouw kan aanwenden, wat betekent verkoop voor een dergelijke bestemming danwel een onherroepelijk vastgesteld bestemmingsplan, zal er een nabetaling plaatsvinden van € 50,-/m2. Indien dit geen woningbouw betreft, maar bedrijventerrein of ander soortige bestemming dan dat het nu is, dus anders dan agrarisch en/of natuur, zal er € 25,-/m2 worden afgerekend.

Voorbehoud:
Het voorbehoud dat verkoper voor 1 maart 2025 een vervangend melkveebedrijf binnen Nederland naar zijn genoegen definitief kan verwerven.

Kadastraal bekend: zie brochure

Oplevering:
In overleg

Vraagprijs/prijsindicatie op aanvraag.

De behandeld makelaar is A. Ph. (Albert) de Koning, telefoonnummer 0653 221 088.

Deze informatie, eventuele gesprekken, onderhandelingen etc. zijn allen vrijblijvend. Er is pas sprake van een overeenkomst op het moment dat de door ons kantoor opgestelde koopovereenkomst door beide partijen is (beoordeeld en) ondertekend. Zolang de koopakte niet door beide partijen is ondertekend, is er geen sprake van gebondenheid in welke zin dan ook en hebben partijen het recht zonder kostenvergoeding etc. af te zien van een transactie.

Kaart

Kenmerken

Overdracht

Referentienummer
1054
Prijs
Prijs op aanvraag
Aanvaarding
In overleg
Aangeboden sinds
Vrijdag 19 april 2024
Laatste wijziging
Maandag 8 juli 2024

Bouw

Type object
Woonhuis, woonboerderij, vrijstaande woning
Soort bouw
Bestaande bouw
Bouwperiode
1903
Isolatievormen
Volledig geïsoleerd

Oppervlaktes en inhoud

Perceeloppervlakte
163.375 m²
Woonoppervlakte
230 m²
Inhoud
940 m³

Indeling

Aantal bouwlagen
2
Aantal kamers
6 (waarvan 4 slaapkamers)
Aantal badkamers
2 (en 1 apart toilet)

Energieverbruik

Energielabel
E

Uitrusting

Verwarmingssysteem
Centrale verwarming
Badkamervoorzieningen Badkamer 1
Douche
Ligbad
Wastafel

Kadastrale gegevens

Kadastrale aanduiding
Nieuw-Lekkerland D 1209
Perceeloppervlakte
19.060 m²
Eigendomsituatie
Eigen grond
Kadastrale aanduiding
Nieuw-Lekkerland D 1348
Perceeloppervlakte
1.682 m²
Omvang
Geheel perceel
Eigendomsituatie
Eigen grond
Kadastrale aanduiding
Nieuw-Lekkerland D 123
Perceeloppervlakte
1.090 m²
Eigendomsituatie
Eigen grond
Kadastrale aanduiding
Nieuw-Lekkerland D 1207
Perceeloppervlakte
39.960 m²
Omvang
Geheel perceel
Kadastrale aanduiding
Nieuw-Lekkerland D 1350
Perceeloppervlakte
101.583 m²
Omvang
Geheel perceel
Eigendomsituatie
Eigen grond

Brochure(s) en overige bijlagen

leaflet Nieuw-Lekkerland, Lekdijk 436.pdf Download