Verkocht:Breudijk 19, 3481 LM Harmelen - Foto
Verkocht
+86

Breudijk 19 3481 LM Harmelen

  • Woonhuis
  • 3 kamers
  • 2 slaapkamers
  • 2 badkamers
  • Bouwjaar 1955
  • 3.795 m² perceeloppervlakte
  • 169 m² gebruiksoppervlakte
  • E Energielabel E

Beschrijving

Bedrijfswoning met loods, schuur en ca. 800 m² verhard terrein.

Landelijk, maar toch heel centraal in de Randstad gelegen goed onderhouden vrijstaande woning met loods/schuur en verhard terrein. De ligging is fraai en weids, met uitzicht over groen en weilanden. Het geheel heeft de bedrijfsbestemming. Wilt u vrij wonen combineren met een bedrijf aan huis? Dan is dit uw kans. De totale perceel oppervlakte is 3.795 m² (eigen grond), met een brede uitrit op de openbare weg.

Situering:
In het buitengebied van Harmelen bieden wij u deze instapklare vrijstaande bedrijfswoning aan met diverse bijgebouwen. De woning is geheel onderkelderd en heeft de beschikking over een vrijstaande praktijkruimte en over een grote loods.

En dan is er ook nog eens de centrale ligging van het geheel. Op korte fiets- en loopafstand van de woning ligt het gezellige dorp Harmelen, waar zich diverse winkels, horecagelegenheden, basisscholen, sportfaciliteiten en het Vijverbos bevinden. Vanuit Harmelen kunt u met de bus richting Woerden en Utrecht. Met de auto bent u binnen 10 minuten op de A12 en met ongeveer 15 minuten op de A2, vanwaar u zo richting Amsterdam, Utrecht, Rotterdam en/of Den Haag kunt rijden.

Algemeen
De woning is traditioneel gebouwd omstreeks 1955 en is in 2011 geheel gerenoveerd en beschikt over energielabel E. De gevels zijn vervaardigd van steen en het dak is met pannen gedekt. De kozijnen zijn van hout en voorzien van dubbele beglazing. Er is vloerverwarming in de keuken en het toilet aanwezig en op de verdieping in de badkamer.

De woning heeft een inhoud van 1.046 m³, een gebruiksoppervlakte wonen van ca. 169 m² en is zoals gezegd gelegen op circa 3.795 m² eigen grond.

Dit is een unieke gelegenheid om te genieten van het beste van twee werelden – de rust, ruimte en privacy, gecombineerd met werken aan huis, in de nabijheid van alle voorzieningen.
Dit perceel biedt alles wat u nodig heeft: ruimte, privacy en een unieke woonsfeer. Neem snel contact met ons op en wie weet maakt u van deze plek uw ideale woon-/werklocatie.

Indeling:
Begane grond: entree, hal, trapopgang, toegang tot de (wijn)kelder, toiletruimte; keuken in hoekopstelling met 5 pits gasfornuis, oven, vaatwasser, koelkast en vriezer. Woonkamer is riant en licht, mede door de vele raampartijen rondom. De open slaande deuren geven toegang tot het terras aan de zijkant van de woning. De schouw met elektrische haard maken het een sfeervol geheel, aan de achterzijde is er een frans balkon; beneden badkamer voorzien van: bad, douche, toilet, wastafelmeubel en desgin radiator; bijkeuken met witgoed aansluitingen, garderobe en loopdeur naar het erf.

Verdieping: overloop met toegang tot 2 riante slaapkamers (met mogelijkheid om 1 van de slaapkamers te splitsen zodat er 3 slaapkamers op de verdieping ontstaan).
De masterbedroom bevindt zich aan de achterzijde van de woning en beschikt over een badkamer ensuite welke voorzien is van vloerverwarming, een hoekbad, inloopdouche, toilet, dubbele wastafelmeubel en design radiator. De openslaande deuren geven toegang tot het heerlijke dakterras met weids uitzicht.

Bijgebouwen

Vrijstaande schuur: afmeting ca. 9,16 x 8,66 meter, gesitueerd aan de zijkant van de woning, voorzien van gevlinderde vloer en geisoleerd dak. Er zijn houten openslaande deuren aan de voorzijde en de zijkant, er is een elektrische roldeur. Op dit moment is de ruimte deels in gebruik als fraai verbouwde praktijkruimte en deels als garage voor het stallen van een auto of fietsen, of om te klussen of spullen in op te bergen. Ook ideaal als bijvoorbeeld mantelzorgwoning (onder voorbehoud toestemming gemeente).

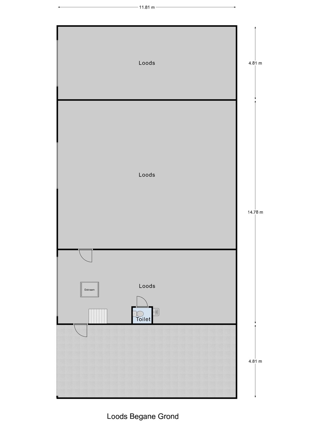
Loods: afmeting ca. 24,4 x 11,81 meter, gesplitst in drie afzonderlijke ruimte’s, allen voorzien van inrijdeuren van ca. 4,05 meter hoog en ca. 4 meter breed! Het achterste gedeelte is voorzien van een verdieping met een toilet. Aan het einde van de loods is er nog een afdak van ca. 6,10 x 10,25 meter.

Tuin: rondom de woning treft u een landelijke en keurig onderhouden tuin met een oase aan rust en groen. Aan de zijkant van de woning treft u terras waar het heerlijk vertoeven is en vanwaar u uitzicht heeft over het achterliggende polderlandschap. Tevens is er op het erf meer dan voldoende parkeergelegenheid voor meerdere auto’s.

Oplevering en overige voorwaarden in overleg.
Voor meer informatie over bovengenoemd object kunt u contact opnemen met Peter van Rossem.

Vrijblijvende aanbieding:
Deze informatie, eventuele gesprekken, onderhandelingen etc. zijn allen vrijblijvend. Er is pas sprake van een overeenkomst op het moment dat de door ons kantoor opgestelde koopovereenkomst door beide partijen is (beoordeeld en) ondertekend. Zolang de koopakte niet door beide partijen is ondertekend, is er geen sprake van gebondenheid in welke zin dan ook en hebben partijen het recht zonder kostenvergoeding etc. af te zien van een transactie.

Kaart

Kenmerken

Overdracht

Referentienummer
1417
Vraagprijs
€ 1.375.000,- k.k.
Inrichting
Niet gestoffeerd
Inrichting
Niet gemeubileerd
Status
Verkocht
Aanvaarding
In overleg
Aangeboden sinds
Maandag 14 juli 2025
Laatste wijziging
Vrijdag 17 oktober 2025

Bouw

Type object
Woonhuis, eengezinswoning, vrijstaande woning
Soort bouw
Bestaande bouw
Bouwperiode
1955
Dakbedekking
Dakpannen
Type dak
Zadeldak
Keurmerken
Energie prestatie advies
Isolatievormen
Dakisolatie
Dubbel glas
Muurisolatie
Vloerisolatie

Oppervlaktes en inhoud

Perceeloppervlakte
3.795 m²
Woonoppervlakte
169 m²
Inhoud
1.046 m³
Oppervlakte overige inpandige ruimten
131 m²
Oppervlakte externe bergruimte
261 m²
Oppervlakte gebouwgebonden buitenruimte
35 m²

Indeling

Aantal bouwlagen
2 (en 1 kelder)
Aantal kamers
3 (waarvan 2 slaapkamers)
Aantal badkamers
2

Locatie

Ligging
Buiten bebouwde kom
Open ligging
Vrij uitzicht

Tuin

Type
Tuin rondom
Hoofdtuin
Ja
Staat
Goed onderhouden

Energieverbruik

Energielabel
E

CV ketel

CV ketel
Vaillant eco TEC plus
Bouwjaar
2023
Eigendom
Eigendom

Uitrusting

Warm water
CV-ketel
Verwarmingssysteem
Centrale verwarming
Badkamervoorzieningen Badkamer 1
Douche
Ligbad
Toilet
Wastafelmeubel
Badkamervoorzieningen Badkamer 2
Inloopdouche
Toilet
Wastafelmeubel
Zitbad
Heeft een frans balkon
Ja
Tuin aanwezig
Ja
Heeft schuur/berging
Ja

Kadastrale gegevens

Kadastrale aanduiding
Harmelen L 1898
Perceeloppervlakte
55 m²
Omvang
Geheel perceel
Eigendomsituatie
Eigen grond
Kadastrale aanduiding
Harmelen L 1635
Perceeloppervlakte
1.495 m²
Omvang
Geheel perceel
Eigendomsituatie
Eigen grond
Kadastrale aanduiding
Harmelen L 2066
Perceeloppervlakte
1.060 m²
Omvang
Geheel perceel
Eigendomsituatie
Eigen grond
Kadastrale aanduiding
Harmelen L 1455
Perceeloppervlakte
175 m²
Omvang
Geheel perceel
Eigendomsituatie
Eigen grond
Kadastrale aanduiding
Harmelen L 1634
Perceeloppervlakte
1.010 m²
Omvang
Geheel perceel
Eigendomsituatie
Eigen grond

Brochure(s) en overige bijlagen

Brochure Breudijk 19, Harmelen.pdf Download
breudijk19.pdf Download